Zu Content springen

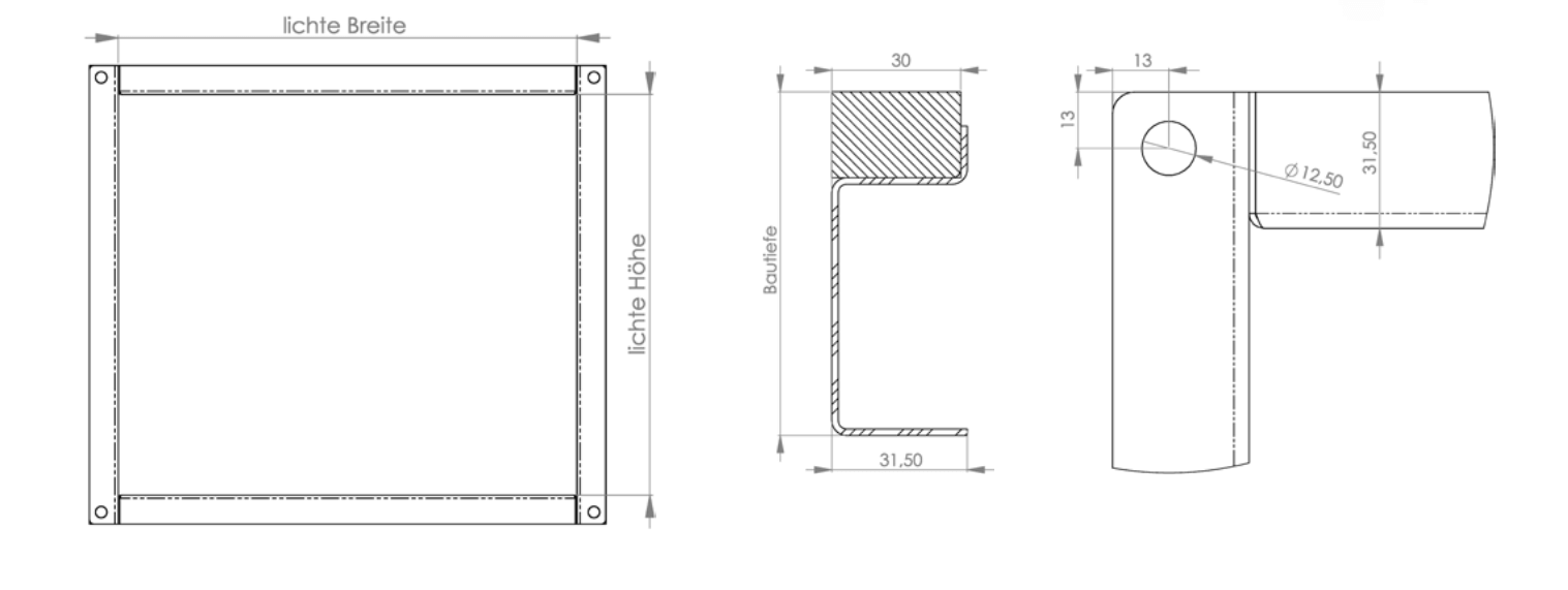
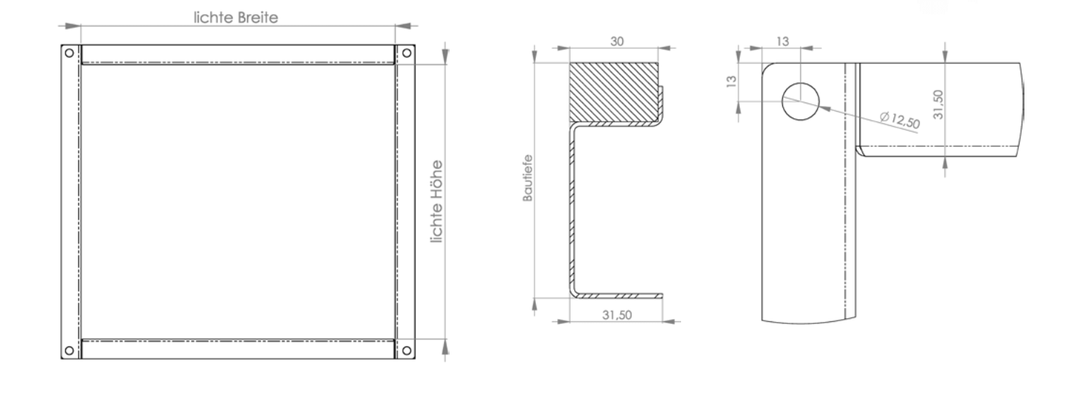
Dämmstutzen

Dämmstutzen zu Körperschallentkopplung in Lüftungsanlagen. Für Hygieneeinsatz geeignet.

Alle wichtigen Details

  • Bautiefe: 80 mm / 100 mm / 120 mm / 150 mm
  • Flansch: P30 mm mit Eckloch
  • Material: Stahl verzinkt, Edelstahl (1.4301), Aluminium
  • Dämmung: Dämmgummi 30×20 mm
  • Brandklasse: schwer entflammbar nach DIN 4102 B1
  • Hygiene: geprüft nach DIN EN ISO 846
  • Geeignet für den Einsatz in RLT-Anlagen gemäß VDI 6022
  • Dichtheit: Klasse C gemäß EN13180
  • Max. Abmessungen in einem Stück: 2.500 x 2.500 mm (BxH)

Warum buschek luftechnik

Maßgeschneiderte Lösungen

Jede Jalousieklappe fertigen wir individuell nach Ihren Abmessungen – ohne Kompromisse bei Passgenauigkeit oder Funktion. Ob Standardmaß oder komplexes Sonderformat: Sie erhalten exakt das Bauteil, das Ihre Lüftungsanlage benötigt.

Über 50 Jahre Erfahrung

Als inhabergeführtes Familienunternehmen in zweiter Generation kennen wir die Anforderungen von Planern, Architekten und Industriekunden. Sie erhalten keine Standardantworten, sondern fundierte Fachberatung – schnell, direkt und verbindlich.

Qualität aus eigener Fertigung

Unsere Jalousieklappen und Lüftungskomponenten werden vollständig in Deutschland entwickelt und produziert. Das bedeutet für Sie: geprüfte Qualität, kurze Lieferwege und ein Ansprechpartner, der für sein Produkt einsteht.

Laden Sie unsere aktuellen Kataloge, Preislisten, technischen Zeichnungen und Ausschreibungstexte schnell und unkompliziert herunter.

Kontaktieren Sie uns für optimale Lüftungslösungen