Zu Content springen

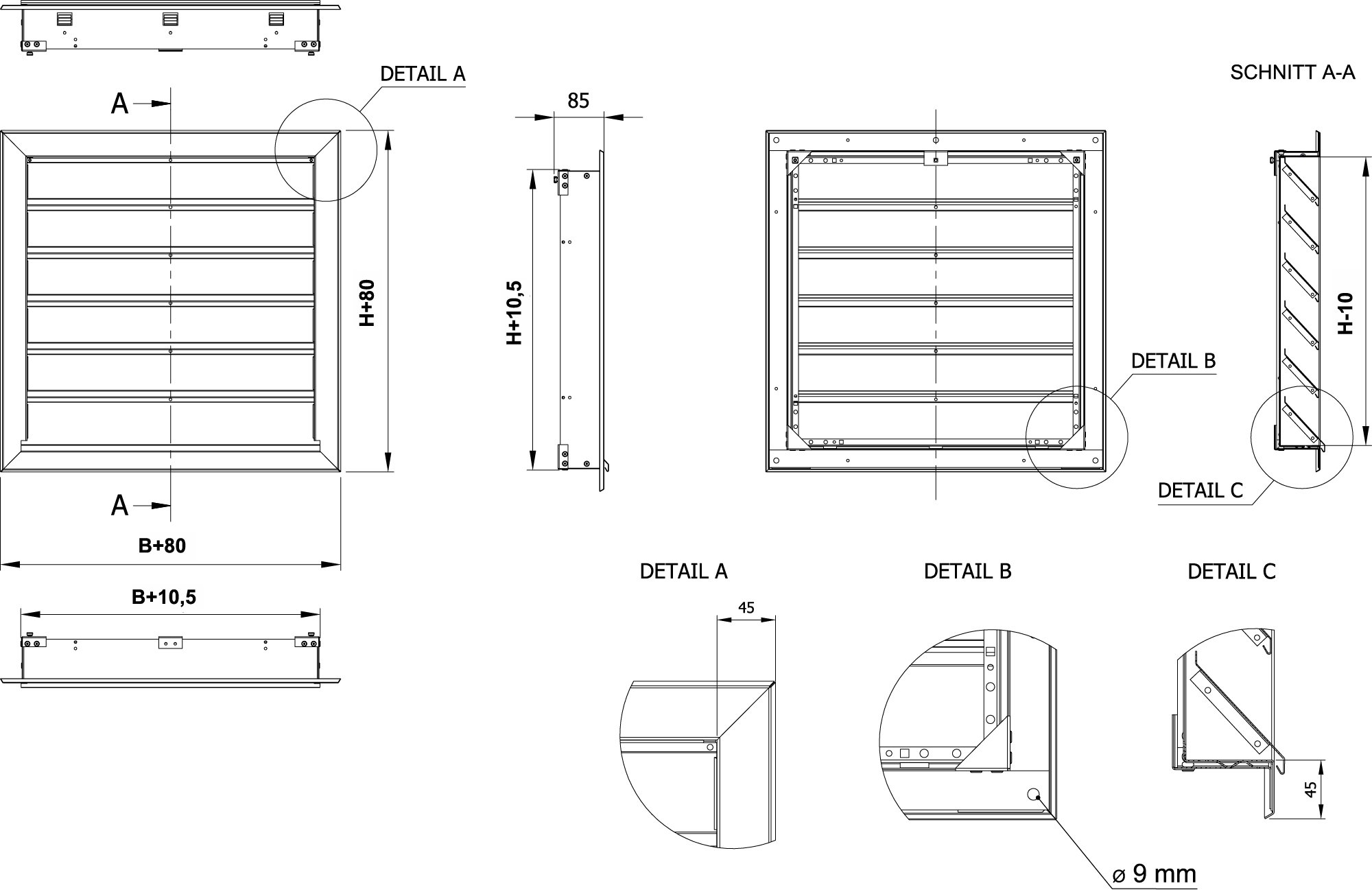
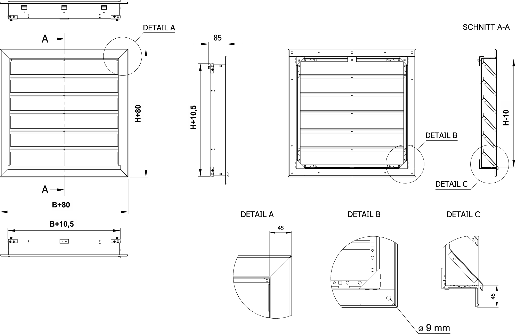
Wetterschutzgitter PDZM 70

 Luftansaug- oder Ausblasgitter mit feststehenden, regenabweisenden Lamellen, inkl. Vogelschutzgitter. 

Alle wichtigen Details

  • 40 mm umlaufender Frontrahmen, auf Wunsch inkl. Bohrungen zum Anschrauben
  • strömungsgünstige, feststehende Lamellen aus verzinktem Stahl mit 70 mm Abstand
  • Gitter: verzinkt, Maschenweite 20 × 20 mm
  • Luftgeschwindigkeit: max. 5 m/s
  • Freier Querschnitt: ca. 55 %
  • Ausführungen: Insektenschutzgitter, Mauereinbaurahmen, Jalousieklappen-Wetterschutz-Kombination
  • Abmessungen: max. 2.000 x 2.000 mm (BxH)
  • Dieses Produkt ist auch in Aluminium, Edelstahl (V2A & V4A) und mit Farbbeschichtung erhältlich.

Laden Sie unsere aktuellen Kataloge, Preislisten, technischen Zeichnungen und Ausschreibungstexte schnell und unkompliziert herunter.

Warum buschek luftechnik

Maßgeschneiderte Lösungen

Jede Jalousieklappe fertigen wir individuell nach Ihren Abmessungen – ohne Kompromisse bei Passgenauigkeit oder Funktion. Ob Standardmaß oder komplexes Sonderformat: Sie erhalten exakt das Bauteil, das Ihre Lüftungsanlage benötigt.

Über 50 Jahre Erfahrung

Als inhabergeführtes Familienunternehmen in zweiter Generation kennen wir die Anforderungen von Planern, Architekten und Industriekunden. Sie erhalten keine Standardantworten, sondern fundierte Fachberatung – schnell, direkt und verbindlich.

Qualität aus eigener Fertigung

Unsere Jalousieklappen und Lüftungskomponenten werden vollständig in Deutschland entwickelt und produziert. Das bedeutet für Sie: geprüfte Qualität, kurze Lieferwege und ein Ansprechpartner, der für sein Produkt einsteht.

Kontaktieren Sie uns für optimale Lüftungslösungen